Video’s en plattegronden
Bekijk hier de plattegronden en video’s van appartementen op Resort Bonaire. Je krijgt een duidelijk beeld van de indeling, de balkons, de ligging binnen het resort en de mate van privacy. Zo kun je beide appartementen goed vergelijken en bepalen welk appartement het beste aansluit bij jouw wensen voor een comfortabel long-stay verblijf op Bonaire.
Blauwe cirkels zijn de appartementen.

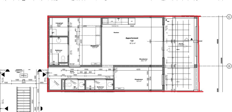
Video-rondleiding appartement B 1.2
Bekijk hier de video van appartement B 1.2 op Resort Bonaire. Deze video laat duidelijk de indeling, afwerking en buitenruimte zien. Zo krijg je een realistisch beeld van het appartement en de ligging, waardoor je eenvoudig kunt bepalen of dit appartement bij jouw wensen past.

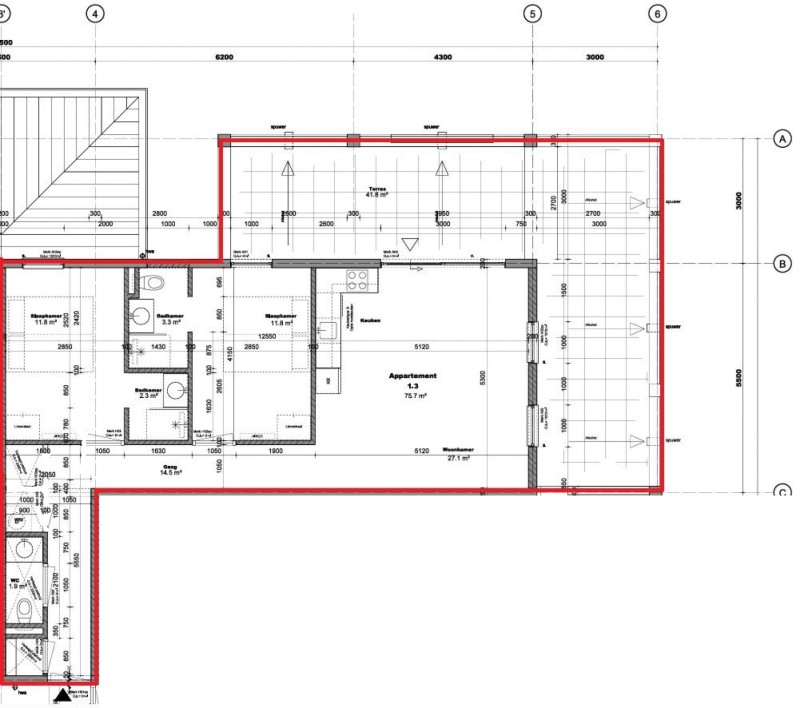
Video-rondleiding appartement D 1.3
Bekijk hier de video van appartement D 1.3 op Resort Bonaire. In deze rondleiding krijg je een compleet beeld van de indeling, de woonruimte, keuken, slaapkamer en het balkon. Ook zie je de ligging binnen het resort en de mate van privacy, zodat je precies weet wat je kunt verwachten tijdens je verblijf.

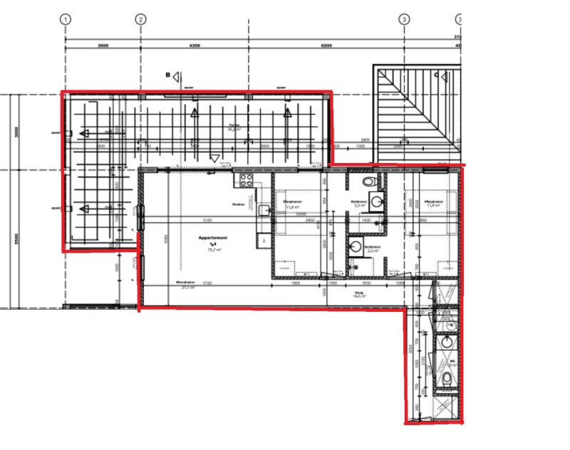
Video-rondleiding appartement A 1.4
Bekijk hier de video van appartement A 1.4 op Resort Bonaire. In deze rondleiding krijg je een helder beeld van de indeling, de afwerking en de sfeer van het appartement. Je ziet de woonkamer, keuken, slaapkamer en de buitenruimte, evenals de ligging binnen het resort. Zo weet je precies wat je kunt verwachten en of dit appartement aansluit bij jouw wensen voor een comfortabel verblijf op Bonaire.

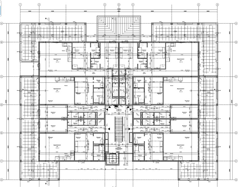
Plattegrond volledige 1e verdieping – ( bijna) identieke appartementen in 6 gebouwen
Bekijk hier de complete plattegrond van de volledige verdieping op Resort Bonaire.
Op deze verdieping bevinden zich drie appartementen, verdeeld over drie verschillende gebouwen. De indeling van deze appartementen is identiek, waardoor je precies weet wat je kunt verwachten – ongeacht in welk gebouw je verblijft.
In de PDF krijg je een helder overzicht van de totale verdieping, inclusief de positionering van de appartementen binnen het resort. Zo zie je in één oogopslag:
De indeling van de woonruimte
- De positie van slaapkamer, badkamer en keuken
- De ligging van balkon of terras
- De onderlinge situering per gebouw
Dit overzicht helpt je om eenvoudig de juiste keuze te maken en geeft duidelijk inzicht in de opbouw van het resort per verdieping.

Dit is onze eigen website met de scherpste prijs. Klik hier voor onze accommodaties of stel ons persoonlijk een vraag.